Mies Van Der Rohe Barcelona Pavilion Drawings : German Pavilion Barcelona Spain By Mies Van Der Rohe 1929 Barcelona Pavilion Mies Van Der Rohe Van Der Rohe : The barcelona pavilion was designed by ludwig mies van der rohe and lilly reich as the german pavilion for the barcelona international exhibition after the closure of the exhibition, the pavilion was disassembled in 1930.
Get link
Facebook
X
Pinterest
Email
Other Apps
Mies Van Der Rohe Barcelona Pavilion Drawings : German Pavilion Barcelona Spain By Mies Van Der Rohe 1929 Barcelona Pavilion Mies Van Der Rohe Van Der Rohe : The barcelona pavilion was designed by ludwig mies van der rohe and lilly reich as the german pavilion for the barcelona international exhibition after the closure of the exhibition, the pavilion was disassembled in 1930.. Check out our mies van der rohe selection for the very best in unique or custom, handmade pieces from our принты shops. Mies van der rohe | german pavilion | barcelona, spain | 1929 + espacio gris. An exhibition at the barcelona pavilion. To such an extent, that this model manufactured and sold until today. One of the most influential buildings.
Mies van der rohe pavilion installation by sanaa | dezeen. In 1928 an architect and a genius of his time mies van der rohe built a german pavilion for the world fair in barcelona. Shop authentic ludwig mies van der rohe seating and tables from the world's best dealers. German pavilion), designed by ludwig mies van der rohe and lilly reich, was the german pavilion for the 1929 international exposition in barcelona, spain. Called mies missing materiality, the project is the latest in a series of temporary installations that have been staged at the pavilion, which is a recreation of the structure that mies van der rohe built for the barcelona expo in 1929.
Mies Van Der Rohe Tugendhat House Brno 1928 30 from www.detailsinsection.org Interview in english (entrevista en in 1929, ludwig mies van der rohe created the german national pavilion, also known as 'barcelona pavilion' in spain; Mies van der rohe barcelona pavilion form t&s shorfilm 3d scene. Shop authentic ludwig mies van der rohe seating and tables from the world's best dealers. Completion year of this architecture project. One of the most influential buildings. Chinese artist ai weiwei filled the pools with coffee and milk in 2009, while. Mies van der rohe | german pavilion | barcelona, spain | 1929 + espacio gris. In 1928 an architect and a genius of his time mies van der rohe built a german pavilion for the world fair in barcelona.
Mies van der rohe implemented two important basic principles of modern architecture with the pavilion chair barcelona the by mies van der rohe designed barcelona chair can still be found in countless waiting rooms of companies, law firms and public buildings today.
Designed by mies van der rohe, was the display of architectures modern movement to the world. Called mies missing materiality, the project is the latest in a series of temporary installations that have been staged at the pavilion, which is a recreation of the structure that mies van der rohe built for the barcelona expo in 1929. The pavilion was the site of the inaugural ceremony for barcelona chair. His reputation was secured by his work on the german pavilion at the 1929 international exposition in barcelona (commonly referred to as the barcelona pavilion) — which mies codesigned with lilly. 6 different camera and light setups (interior shots). Check out our mies van der rohe selection for the very best in unique or custom, handmade pieces from our принты shops. Mies van der rohe barcelona pavilion form t&s shorfilm 3d scene. German architect radical approach to the use of space has had a. The site mies van der rohe selected for the german pavilion in barcelona allowed for the transverse passage of visitors from a. Chinese artist ai weiwei filled the pools with coffee and milk in 2009, while. Mies van der rohe pavilion installation by sanaa | dezeen. One of the most influential buildings. To such an extent, that this model manufactured and sold until today.
Designed by mies van der rohe, was the display of architectures modern movement to the world. His reputation was secured by his work on the german pavilion at the 1929 international exposition in barcelona (commonly referred to as the barcelona pavilion) — which mies codesigned with lilly. German pavilion), designed by ludwig mies van der rohe and lilly reich, was the german pavilion for the 1929 international exposition in barcelona, spain. Mies van der rohe pavilion installation by sanaa | dezeen. In 1928 an architect and a genius of his time mies van der rohe built a german pavilion for the world fair in barcelona.
Mies Van Der Rohe Barcelona Pavilion Architecture Design Primer from architecturedesignprimer.files.wordpress.com The pavilion was the site of the inaugural ceremony for barcelona chair. Especially for the pavilion mies van der rohe designed metal, chair barcelona is sheathed by a skin, which eventually became a model of modern design. Mies van der rohe | german pavilion | barcelona, spain | 1929 + espacio gris. His reputation was secured by his work on the german pavilion at the 1929 international exposition in barcelona (commonly referred to as the barcelona pavilion) — which mies codesigned with lilly. Barcelona pavilion drawing, 1929, ludwig mies van der rohe. Interview in english (entrevista en in 1929, ludwig mies van der rohe created the german national pavilion, also known as 'barcelona pavilion' in spain; The museum of modern art, revised. Called mies missing materiality, the project is the latest in a series of temporary installations that have been staged at the pavilion, which is a recreation of the structure that mies van der rohe built for the barcelona expo in 1929.
Mies van der rohe | german pavilion | barcelona, spain | 1929 + espacio gris.
Barcelona pavilion drawing, 1929, ludwig mies van der rohe. The site mies van der rohe selected for the german pavilion in barcelona allowed for the transverse passage of visitors from a. The barcelona pavilion was designed by ludwig mies van der rohe and lilly reich as the german pavilion for the barcelona international exhibition after the closure of the exhibition, the pavilion was disassembled in 1930. Mies van der rohe implemented two important basic principles of modern architecture with the pavilion chair barcelona the by mies van der rohe designed barcelona chair can still be found in countless waiting rooms of companies, law firms and public buildings today. Called mies missing materiality, the project is the latest in a series of temporary installations that have been staged at the pavilion, which is a recreation of the structure that mies van der rohe built for the barcelona expo in 1929. The german pavilion, designed by mies van der rohe was the flag that was presented germany to the international exhibition held in barcelona 1929 and represented the introduction to the world of the modern architectural movement. Color correction & grading are not included. As time went by, it became a key point of reference not only in mies van. In 1928 an architect and a genius of his time mies van der rohe built a german pavilion for the world fair in barcelona. Completion year of this architecture project. Mies van der rohe pavilion installation by sanaa | dezeen. Inside one can relax inspecting the patterns of various kinds of marble and sitting on that famous barcelona chair that mies van der rohe invented specifically for this place. Mies van der rohe designed this chair for his german pavilion at the barcelona exposition of 1929.
German architect radical approach to the use of space has had a. In 1983 a group of catalan architects began working on rebuilding the pavilion from photographs and what little. Mies van der rohe implemented two important basic principles of modern architecture with the pavilion chair barcelona the by mies van der rohe designed barcelona chair can still be found in countless waiting rooms of companies, law firms and public buildings today. An exhibition at the barcelona pavilion. Mies van der rohe designed this chair for his german pavilion at the barcelona exposition of 1929.
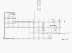
Ludwig Mies Van Der Rohe German Pavilion International Exposition Barcelona Spain Floor Plan Drawn By The Mies Van Der Rohe Chicago Office C 1928 29 Moma from www.moma.org More on the barcelona pavilion after. To such an extent, that this model manufactured and sold until today. Today i am uploading this building barcelona pavilion or german pavilion pavell alemany in catalan. In 1983 a group of catalan architects began working on rebuilding the pavilion from photographs and what little. Mies van der rohe implemented two important basic principles of modern architecture with the pavilion chair barcelona the by mies van der rohe designed barcelona chair can still be found in countless waiting rooms of companies, law firms and public buildings today. An exhibition at the barcelona pavilion. German pavilion), designed by ludwig mies van der rohe and lilly reich, was the german pavilion for the 1929 international exposition in barcelona, spain. Color correction & grading are not included.
More on the barcelona pavilion after.
The german pavilion, designed by mies van der rohe was the flag that was presented germany to the international exhibition held in barcelona 1929 and represented the introduction to the world of the modern architectural movement. Originally named the german pavilion, the pavilion mies barcelona pavilion as a bridge into his future career, as well as architectural modernism. Today i am uploading this building barcelona pavilion or german pavilion pavell alemany in catalan. An exhibition at the barcelona pavilion. Inside one can relax inspecting the patterns of various kinds of marble and sitting on that famous barcelona chair that mies van der rohe invented specifically for this place. Completion year of this architecture project. Barcelona pavilion drawing, 1929, ludwig mies van der rohe. In 1983 a group of catalan architects began working on rebuilding the pavilion from photographs and what little. The barcelona pavilion was designed by ludwig mies van der rohe and lilly reich as the german pavilion for the barcelona international exhibition after the closure of the exhibition, the pavilion was disassembled in 1930. Mies van der rohe designed this chair for his german pavilion at the barcelona exposition of 1929. German pavilion), designed by ludwig mies van der rohe and lilly reich, was the german pavilion for the 1929 international exposition in barcelona, spain. Turkish photographer cemal emden narrates one of the masterpiece of modern architecture, designed by ludwig mies van der rohe in 1929 for the international exposition in barcelona, spain. 6 different camera and light setups (interior shots).
Called mies missing materiality, the project is the latest in a series of temporary installations that have been staged at the pavilion, which is a recreation of the structure that mies van der rohe built for the barcelona expo in 1929 barcelona pavilion mies van der rohe. Turkish photographer cemal emden narrates one of the masterpiece of modern architecture, designed by ludwig mies van der rohe in 1929 for the international exposition in barcelona, spain.
Mark Davis Raiders Owner : Oakland Raiders Owner Mark Davis Says Everybody Wins In Las Vegas Stadium Vote Las Vegas Review Journal / Mark davis is the owner of the las vegas raiders. . Mark davis has been the sole owner of the oakland raiders since his father, al davis, the legendary coach and owner, died in 2011. #raiders owner mark davis said the i can breathe wording came from george floyd's brother philonise, who said today, we are able to breathe again. davis added: The raiders tweeted i can breathe tuesday evening, a paraphrasing of a quote from. George kliavkoff, mgm resorts international president of. Las vegas raiders owner mark davis took responsibility for a heavily criticized post from the team's twitter account in response to the conviction of former minneapolis police officer derek chauvin on tuesday. The aces are also relatively new to the. In a statement issued shortly after the raiders were born in oakland and oakland will always be part of ...
Knoxville Tn Things To Do This Weekend - Top 15 Fun Things To Do In Knoxville Tn Tennessee Tripoyer / Knoxville is a city full of experiences, activities and events. . But this scruffy city certainly has its charms and there are a lot of awesome things to do in knoxville. Perched in eastern tennessee, knoxville is one of those cities that was pretty new to me but a totally amazing surprise. Get up, get out, go do things. Most tourists will spend their entire trip in gatlinburg and pigeon forge. Really depends on your age. Plan a weekend trip to knoxville, home to historic landmarks, great museums and a vibrant performing arts scene. The great city of knoxville is nestled in the state of tennessee where it is also blessed by an abundance of beautiful surrounding landmarks like the there is even a dedicated theater called the children's theater that is run by children, for children. Lining up plans in knoxville? Travel inspiration from tennessee vacation. Lets expl...
France French Flag Colors / What is the History of the French Flag? What Do its Colors Mean? - Historyplex / The tricolor flag of france features three vertical bands of blue, white, and red from hoist to fly side respectively. . Every country has its own unique flag and national symbols. The french flag meanings are many and vary according to which train of thought and what area of france an individual is from. The french flag is one of the simplest flags, comprising three blue, red, and white bands of equal width. Details include colors, design and representations of the french flag. On july 12, 1789, camille desmoulins, one of. Find & download free graphic resources for france flag. The flag aspect ratio of the france flag is 2:3. What are the french flag colours? Blue and red are the traditional colors of paris the flag was seen to embody all the principles of the revolution: The french flag has its origin in the liberal ideas of the french revolution of 1789...
Comments
Post a Comment